Distances during construction between houses, fences, electrical and water utilities should be established based on the norms of SNiPs. These rules create a safe living environment for all people living in this area.
What distance should be between multi-storey buildings?

Design institutes and house-building plants take the distances between all industrial, public and residential buildings at the design stage of the structure. To select distances, SNiP 2.07.01-89 "Planning and development of urban and rural settlements" is applied, as well as SP 52.13330 section 15 "Fire safety requirements".
According to the urban planning code of the Russian Federation, residential buildings with a height of 2-3 floors are not allowed to be located closer than 15 m, buildings with a height of more than 4 floors should be at a distance of at least 20 m. On the long sides, the minimum distance between houses should be at least 10 m.
Fire safety in multi-storey buildings

Fire safety of multi-storey buildings is achieved not only due to the location of houses at a safe distance, but also through the use of modern fire fighting equipment and planning solutions. Evacuation and fire-fighting requirements for multi-story buildings are divided into three groups: buildings with a height of 6-9 floors, from 10 to 16 and houses with a height of more than 16 floors.
The weakest safety requirements are imposed on buildings with a height of 6-9 floors, this is due to the length of the fire escape. In this regard, in small cities there are frequent cases when the development consists of continuous nine-story buildings. In the event of a fire, such houses are most easily evacuated. Smoke removal devices, as a rule, are absent, and stairwells are arranged inside the house, made exclusively from non-combustible materials.
In houses with a height of more than 5 floors, an additional escape ladder is arranged. Such stairs are made vertical and placed in the balconies of apartments.

In houses with a height of more than 10 floors, stairs are open or semi-open type, often such stairs are built outside the house in the form of loggias. Also in the elevators and inner cages, smoke exhaust ventilation from fireproof materials is installed.

It is worth noting that more and more the number of external stairs in new homes is reduced, compared with Soviet housing construction. External stairs are very convenient to use during evacuation, but during normal operation of the house it is much more practical to use internal structures. The reduction in the number of outdoor structures is due to complaints by residents of the houses about the possibility of unauthorized persons entering the house and the danger of using such stairs in winter. Now, when designing a ten-story building, no more than 1-2 stairs are provided.
Fence height between houses

Many people want to close their plot with a high fence so that no one can spy on what is happening on the territory of the house, as well as restrict the penetration of uninvited guests. However, based on the rules of SNiP, the fence of the site should have a certain height, this is due to fire safety standards. In the event of a fire, the fire can be thrown onto the fence, and this, in turn, will increase its spread and prevent it from quickly leaving the flammable territory.
Depending on the region, the height of the fence may vary, federal standards set the height between buildings at 1.5 m. In remote regions, the fence between houses is allowed to be built up to 2.2 m.In connection with these differences, it is necessary to focus on the norms of the territory where the development takes place.
Also, the fence between the sections should transmit light well. An ideal choice would be a metal fence or mesh netting. A solid fence can be erected on the site only with the permission of all the neighbors next to which the house is located.
Without the permission of neighbors, only fences up to 0.75 m high are allowed to be built. The law does not prohibit building a structure up to such a fence to a height of 1.5-2.2 m, the only condition is that a structure above 0.75 m must transmit light.
Sanitary standards

Sanitary standards establish the distances at which buildings for various purposes should be located.
The minimum distance from the house to the fence should exceed 3 m. Measurement is carried out from the basement of the first floor, if the roof is 0.5 m further than the basement, then the distance must be calculated from the point at which the ledge of the roof ends.
The slope of the roof of the new house should fall in the direction of its site, and not the neighboring house. The distance between small structures and the fence should be at least 1 m.
Cattle pens, chicken coops, cowsheds should be at least 4 m from the fence. This is done so that the neighbors do not smell cattle.
Sanitary requirements establish the permitted distance for planting vegetation relative to the fence. Medium-height trees are allowed to be located at a distance of 2 m, large ones from 4 m, and berry and ordinary bushes - at a distance of at least 1 m.
The bath should be at least 5-8 meters from the house and 1 meter from the fence. A street toilet is allowed to be installed at a distance of at least 15 meters from the fence, this distance is provided so that the smell of feces does not blow off to neighbors.
There must be at least 1 m between the garage and the fence.
Fire safety in private homes
Mandatory distances dividing houses are called fire breaks. The distances at which it is allowed to build houses are set so that the fire does not transfer from one house to another, as well as for passage of special. equipment if necessary.
The norms of distances between houses are regulated by SNiP 2.07.01-89. According to the regulations, the construction of private houses is divided into 3 groups:
- Stone, concrete, non-combustible materials.
- Stone or concrete buildings with wooden roofs and fireproof materials.
- Wooden buildings made of slow-burning and combustible materials.
The minimum fire distances are set based on the table:
| Stone, concrete and other non-combustible materials | Stone, concrete with wooden floors, protected by fireproof materials | Wooden enclosing structures made of fireproof and combustible materials. | |
| Stone, concrete and other non-combustible materials | 6 | 6 | 10 |
| Stone, concrete with wooden floors and fireproof materials | 8 | 8 | 10 |
| Wooden enclosures made of slow-burning and combustible materials | 10 | 10 | 15 |
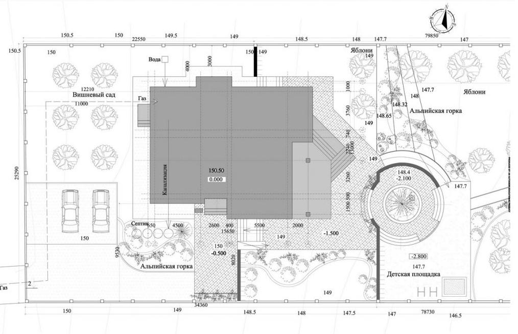
Master Plan for the construction of a summer cottage

The general plan for the development of the site is an accurate drawing that describes all the buildings on the site, the area of the walls, the landscape design that is planned on the site, the size of the structures, the level of buildings relative to the floor of the first floor of the house.
The composition of the master plan
The master plan includes:
- images of all buildings on the site, the distance from the house to the fence, an indication of the location of the networks of gas, water and electric wires;
- geodetic data on the construction site;
- a schematic illustration of the improvement of the site: paths, play areas, gazebos, etc. should be described and shown;
- the location of shrubs, trees and a vegetable garden.
The master plan, in addition to the graphic part, must have project documentation. Separate detailed documentation should be developed for water, gas and electric pipelines with a description of the selected network elements.It is also necessary to zone the territory of the house.
Zoning of the territory of a summer cottage
Residential building is allowed to be built on sites with an area of more than 6 acres. For the most correct and efficient location of buildings on the site, the zoning method is used. Before starting the process, it is worth determining which zones will be present on the site and what role they will fulfill.
For example, if the well is at a sufficient distance from the house, you will have to travel long distances every time you need to draw water. The same is true for cattle pens.
But do not forget that it is strictly forbidden to have all the structures nearby. To study the norms of distances between houses and objects, SNiP 30-102-99, as well as SNiP 30-02-97, should be used.

Areas that can be placed on the site
The territory of rest. The area on which will be placed a playground, gazebo, playing field. This area should not be near flammable materials.
Household buildings. It is best to place them nearby for ease of use. In this area, it is worth having chicken coops, cattle pens, a street toilet, and sheds.
House territory. Here you should have a house, a garage, a well and all the extensions that will be necessary for people to live.
Proper zoning of the territory will ensure the most favorable, and most importantly, safe living of people at home. For example, if the toilet is too close to the house, an unpleasant smell will constantly be felt, and the location of buildings close to the barbecue will increase the chance of a fire.