Very often, people with private housing equip the house and the land to their taste and needs. As a rule, all these actions are carried out without permission, without coordination with the relevant authorities. But if such an owner wants to sell his property, then he will need a plan for the planning organization of the land plot (SPOSU). If re-equipment is only planned, it makes sense to approve the necessary documents in advance by the local authorities.
What it is
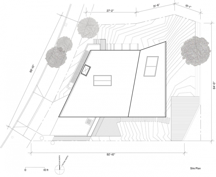
This document is a plotted plot of land on a scale of 1: 500. It indicates its exact size and location. Then all the buildings and sewage lines, water supply, electricity, gasification are marked. The objects to be erected are also marked. In addition, a written part is provided, which indicates all the characteristics of land and buildings provided for by the legislation of the Russian Federation.
This scheme of the planning organization of the land plot is approved for both individuals and legal entities in the municipality. The documentation and list of references will differ (for private construction and other capital facilities).
Who can make a plan
This issue is regulated by the Town Planning Code of the Russian Federation. It says that the plan for the planning organization of a land plot can be independently compiled by an individual. This is possible provided that the drafter owns the site. As well as upcoming work will not affect the security level of other facilities. Otherwise, the plan is drawn up by the individual entrepreneur or companies that have received the appropriate license.
Private Owner Requirements
In order for the upcoming construction and conversion to be legal, a list of the following documents should be compiled:
- Application in the required form.
- Scheme of the planning organization of the land, approved by the relevant authorities.
- Evidence that the site is in your ownership.
- Cadastral certificate for the site.
- Topographic survey of the area with the definition of the perimeter of the desired area.
- Scheme of the house and other buildings.
In graphic plan
The planning organization plan assumes the following items:
- Serial number. It is assigned individually to each project.
- The total area of the entire plot.
- The area allocated for development, as a percentage. Be sure to attach the calculations.
- The total number of meters of a residential building.
- Number of floors, excluding basement or basement. Determination of the overall height of the building.
- View of the fence surrounding the site.
- What will the construction consist of.
- Conventional designation of objects.
- Entering the plan of existing buildings.
- Identification of public areas, if any.
- Designation of the space of sanitary gaps, protective and protective territories.
- Drawing places of prospective entrances, as well as approaches.
- Plan for the proposed improvement.
Written Information
Also, the preparation of full documentation provides a detailed description in text form of these characteristics:
- Properties of this site (soil type, groundwater occurrence, horizontal slope of the area).
- Designation of the necessary sanitary and protective distances between objects. If there is a risk of contentious issues, provide links to the legislation of the Russian Federation.
- Compliance of this plan with all necessary requirements.
- Detailing the plan for the proposed improvement.
FEI features
The designated areas are intended for building houses, outbuildings, housekeeping on them. At the national level, they have a special status. Local authorities are obliged to provide this space with all necessary communications (electricity, centralized water supply and gas). Laying roads to lands of this importance is also provided. In winter, the municipality is required to clear the roadway.
Since 2008, by a decree of the Constitutional Court of the Russian Federation, the rights to construction and residence on lands belonging to different categories have been equalized. Now the owners of land for private housing, personal subsidiary plots (LPH), country and garden places have the same opportunities.
For construction in the country or in the country, you also need a plan for the planning organization of the land. Examples can be very different. It depends on the size of the area and construction goals.
Site selection
Consideration of purchase options should be based on the purpose of the purchase. If you plan to permanently live in a built house, then it is better to choose a place with failed communications. If they are not, then there should be the possibility of an independent connection.
The exact places for connecting to the house water supply, sewage, gas, electricity should include a plan for the planning organization of the land. Examples of their location are usually available at local governments, which are responsible for approving documents. You should pay attention to the presence of roads, regular transport, educational and medical institutions, shops.
In the event that you only have to rest on the site, it makes sense to find a place near the reservoir, away from major highways and the city. You should be aware that land for living quarters in residential settlements is much more expensive than in gardening. Given these features, there will be a different plan for the planning organization of the land. The sample may be standard, but original solutions are possible.
Regulations for legal entities
The preparation of a package of documents for the capital construction of this category of citizens is very extensive. The scheme of the planning organization of the land is one of the 12 necessary points. The list of references includes:
- Application for compiling a RAM.
- Permission or other document that contributed to the start of work on the project.
- Design task.
- A sketch of the circuit.
- Architectural scheme.
- Description of the geographical location and social significance of the land.
- Allocation of territory for traffic and pedestrians.
- Determination of estimated freight density.
- Engineering confirmation of the compliance of the terrain with the declared construction plan.
- Construction scheme.
- Documents establishing ownership of the site.
- The document on cadastral registration of land.
- Technical passports for already constructed facilities located on this site.
- Documents establishing ownership of buildings located on the area of the proposed construction.
- Topographic image of the area indicating the perimeter of the site.

For legal entities, the plan for the planning organization of the site is compiled by an organization that has the appropriate license to perform such work. It should contain the following data in text form:
- A detailed description of the site on which construction is planned. Characterization of soil, occurrence of groundwater and other features.
- Accurate determination of all distances designed to comply with sanitary and safety standards.
- The justification that the scheme of the architectural and planning organization of the territory meets the standards of urban planning and safety precautions.
- Justification of technical and economic properties of the proposed facility.
- Plan for optimizing the movement of transport on the territory of buildings and beyond.
- Scheme of alleged communications and justification of its relevance.
- The exact designation of the places of construction of buildings, and evidence of the correctness of this choice.
- Evidence that the scheme of the planning organization of the territory helps to protect the object from possible natural disasters.
Graphic drawing
This document assumes the availability of data:
- Accurate paper application of all existing and proposed buildings, demolition structures, porches and approaches.
- Sites over which the boundaries of public places pass.
- Details of the upcoming communications - electricity, water, gas. Designation of enterprise connection to city networks.
- Plan for the gradual construction of buildings, including the location of the passage of construction vehicles.
- Scheme of actions in emergency situations (such as fire, flood and the like).
- Definition of traffic on the territory of the facility and beyond.