Explication of premises is a document that is an explanation of an architectural project or sketch, technical inventory passport. It consists of a table, which usually contains the following information:
- number of floors in the building;
- purpose of all premises;
- the area of each room and the total;
- height.
Depending on the functional purpose and type of real estate, the explication may contain additional information. As a rule, each row of the table has a letter designation corresponding to the abbreviation on the plan.
The explication performs a reference function so that it is possible to "manage" the space of the room on paper.
Why might you need a document?
Explication of premises, first of all, will be required when registering ownership rights or when legalizing redevelopment in residential or non-residential real estate (as part of the BTI technical plan). When constructing a new building, the developer is obliged to order the production of the document and provide it when passing through the commissioning commissioning procedure.
In some regions of our country, when registering multi-apartment buildings for cadastral registration, in addition to all documents, the registration service requires an explication to be attached to the technical plan for the building.
When applying to a bank for a mortgage loan, an explication must be attached to the package of documents.

Explication to the land
Despite the fact that the land is not a residential or non-residential building, nevertheless, for it there is a special type of explication. The document contains information that will allow to identify the site, namely:
- area data;
- symbols that have been put on the plan;
- information about the buildings that are located on it;
- numerical and qualitative indicators.
The statement is attached to the master plan. The production of such documents is still the same BTI.

Residential Properties
Explication of premises intended for housing should contain the following information:
- apartment size;
- area (both the total and the size of each room and all utility and sanitary rooms);
- detailed address of the object (city, street, house and apartment number);
- the functional purpose of the property (also the purpose of each room is indicated).
That is, the document should contain the main characteristics of the examined object. This allows you to clearly identify which area is considered residential and which is subsidiary. This question becomes relevant when the size of utilities is determined, because not all areas in the apartment are payable, for example, a loggia and a balcony.
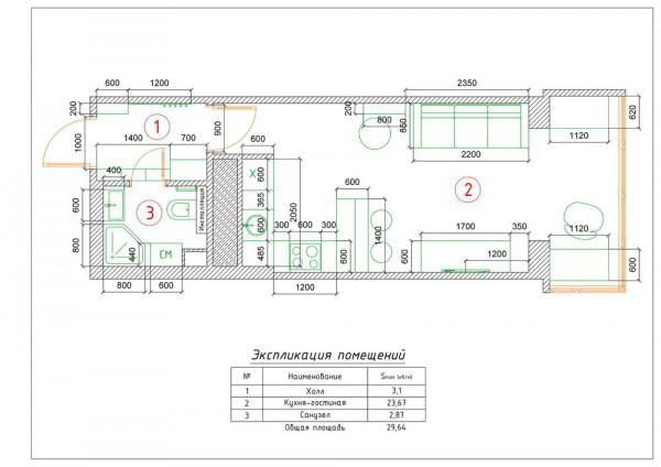
However, the explication of residential premises cannot be complete without a floor plan, which is drawn up in the form of a drawing. The document draws the boundaries of all rooms and other rooms, including a reflection on the plan of places where windows and doors are located, and a balcony. Such a plan is relevant when buying real estate, it allows the buyer to determine how suitable the layout of housing suits him.

Building explication
This is a statement with information about all the premises that exist in the building. The key difference between the sheet to the apartment and the building is in the amount of work and the number of described objects. For example, in an apartment building, the number of apartments can reach 100 or more, with a total area of 1000 or more square meters. m. And this does not include commercial premises, parking lots and other utility rooms. But, the form and essence of the explication of premises does not change from this.
Regulations
It is necessary to compile the explication of the premises in accordance with GOST 21.509-93 SPDS - this is a set of building rules that describe the procedures and rules that must be followed by a specialist when conducting measurement work.
The GOST also states that when compiling the explication at the stage of construction or design, it is necessary to indicate the name of the material from which the walls were built, both external and internal, partitions. If the interior decoration was carried out, then information about this is entered in the statement. Information is also provided about the wiring, water supply, sewage and gas supply.

Where to get the document
The first option, how to make the explication of the premises - contact the BTI. To this day, the bureau of technical inventory perform their functions, but without the possibility of registering rights to real estate. To do this, you need to contact the territorial office, write a statement, pay the state fee. After the BTI specialist enters the object, get explication in his hands. The entire procedure takes no more than 14 days.
For owners and holders of apartment buildings that were built after 2013, the developer must provide an explication.
In addition to the above two options, today you can contact a private organization that will issue relevant permits for this type of work. Such organizations produce not only explications, but also draw up floor plans, conduct a full range of works on technical inventory of real estate.